La Diputación Provincial de Zamora ha abierto el proceso de licitación para construir el nuevo Parque de Bomberos de la Comarca de Toro, con un presupuesto total de 750.000 euros.
El proyecto, que se financiará íntegramente con cargo al presupuesto provincial de 2025, se tramitará por un procedimiento abierto simplificado que busca acelerar los tiempos en la adjudicación y el inicio de obras. El objetivo marcado es tener el gasto aprobado y el contrato adjudicado antes de que termine el año.
La licitación ya está publicada en el Perfil del Contratante de la Diputación, alojado en la Plataforma de Contratación del Sector Público, donde las empresas interesadas pueden consultar toda la documentación técnica y administrativa.
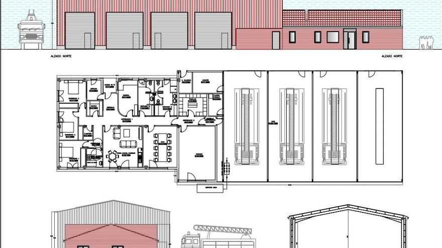
El nuevo parque está diseñado para responder a las necesidades actuales de seguridad y protección civil. Contará con unas instalaciones modernas, adaptadas a las exigencias del servicio profesional de extinción de incendios y emergencias.
Desde la Diputación afirman que este parque mejorará no solo la seguridad de los ciudadanos de Toro, sino de toda la comarca.
Con esta inversión, la institución provincial refuerza sus medios tanto materiales como humanos del Consorcio Provincial de Bomberos, buscando ofrecer un servicio más eficaz y cercano en todo el territorio. El desglose del presupuesto incluye 619.834,71 euros de base imponible y 130.165,29 euros correspondientes al IVA.
Este proyecto es parte del compromiso de mejorar los recursos y la capacidad de respuesta ante emergencias, un paso clave para la comarca de Toro y sus alrededores.


































